Во время ремонта главной улицы Новосибирска рабочие раскопали каменную мостовую.
Краеведы полагают, что эту мостовую построили до революции
Сегодня, 20 августа, на Красном проспекте в Центральном районе Новосибирска под снятым асфальтом нашли дореволюционную каменную мостовую.
Фотографии мостовой в редакцию НГС прислала читательница Надежда. Она сделала снимок около Стоквартирного дома на Красном проспекте, 16.
Версию о том, что мостовой более века, поддерживает и краевед Константин Голодяев.
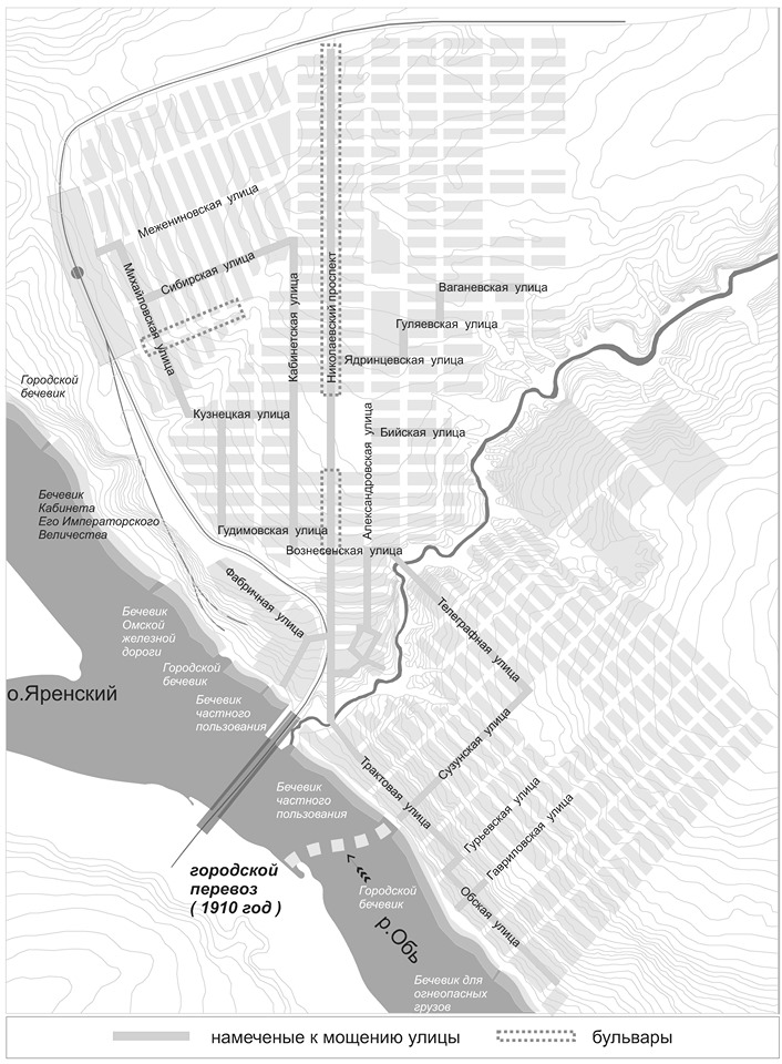
«Там есть и "лысые" места. Я как раз неделю назад постил фотографию, где эта мостовая находится прям на дороге, а не в углублении. Это действительно дореволюционная мостовая. Она и сейчас видна, её не заделали. Впервые работы по "исправлению дорог" начались летом 1909 года, когда Городская дума приняла постановление о порядке на территории улиц. Под первоочередное мощение попадали улица Владимировская, Переселенческая (сейчас — 1905 года), Трактовая (Большевистская), Сузунская (Восход), Обской проспект (Комсомольский) и, конечно же, Николаевский проспект (Красный проспект), ширина мощения которого была определена в 25 саженей (больше 50 метров). Начало проспекта как раз входит в этот перечень», — рассказал корреспонденту НГС краевед Константин Голодяев.
Пока неизвестно, что городские власти будут делать с находкой
Фото: читательница НГС
По его словам, для мостовой выбрали «рижский» тип покрытия, а основанием был песок, который привозили с Яренского затона.
Камень для мостовой брали в округе
Фото: схема из книги С.М. Новокшонова «Градостроительное развитие Ново-Николаевска»
«Работы эти были очень дороги. Деньги шли с попудного сбора с перевозимых через город грузов. До революции основные запланированные участки замостить успели, но основной объём работ проводили уже при Советской власти», — добавил Константин Голодяев.
Основной объём мощения делали уже при Советской власти. На фото — мостовая у дома на Красном проспекте, 10
Фото: форум «Новосибирск в фотозагадках»
Корреспондент НГС направил запрос в пресс-центр мэрии Новосибирска с просьбой уточнить, что будут делать с найденной каменной мостовой. На момент публикации ответ в распоряжение редакции НГС не поступил.
В апреле в Новосибирске начали ремонтировать ямы на дорогах левого берега — на площади Сибиряков-Гвардейцев сняли старый слой асфальта до брусчатки. По мнению историков, брусчатку укладывали после войны пленные немцы.




Добавить комментарий