Наверное, каждый из нас задумывался над тем, почему городские улицы имеют то или иное название. История Новосибирска насчитывает больше ста лет, и за это время есть имена на карте города ,которые не менялись.
Улицы… Как много они могут рассказать! В них отражаются время, жизнь, историческая память, духовные и нравственные ценнности поколений. Улицы являются как бы маленькой частичкой исторического и культурного наследия нашего общества. История многих из них начинается еще в царской России, проходит через Советский Союз и продолжается в России современной.
На карте Октябрьского района есть улицы, заложенные в конце 19 века, которые носят свои названия до сих пор. Судя по названиям этих улиц, Новониколаевск - самый аполитичный город с явным уклоном в сторону классиков русской литературы. Чехов ещё был жив, а улица в его честь в Новониколаевске уже была.
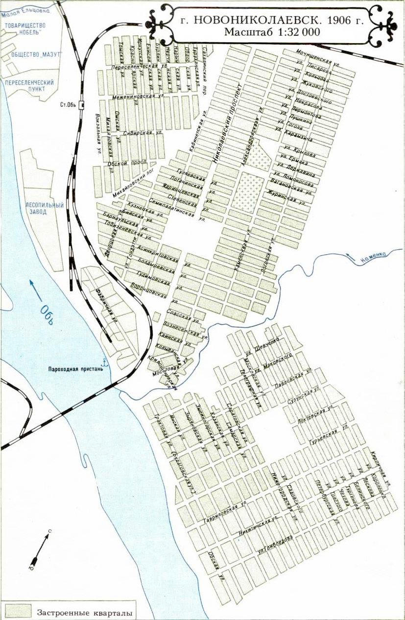
Я живу на одной из важной магистрали городского значения - улице Никитина. Эту улицу можно найти на плане Новониколаевска, который был сделан в 1906 году (см. Приложение 1), правда тогда она носила название Никитинская. Отсюда следует сделать вывод, что человек, чье имя она носит, жил еще в позапрошлом веке.
Так и есть. Улица в Октябрьском районе города Новосибирска названа в честь поэта Ивана Саввича Никитина. Родился Иван Никитин в 1824 году в городе Воронеже, в семье владельца свечного завода. В восемь лет был отдан в духовное училище, по окончании которого в 1841 году поступил в духовную семинарию. Учился хорошо, особенно преуспевал в словесности. Отец хотел дать сыну университетское образование, однако из-за угрозы разорения вынужден был продать завод и приобрести постоялый двор, на котором нашлась работа и сыну. Юноша бросил учебу и стал помогать семье. Свои стихи он долго не решался предлагать для печати. И лишь в 1853 году в газете «Воронежские губернские ведомости» было опубликовано стихотворение «Русь», сразу принесшее ему известность. Об Иване Никитине заговорили как о «писателе-самородке». Его стали печатать в «Отечественных записках» и «Русской беседе».
В его раннем творчестве преобладают стихотворения на патриотические темы. В ряде своих работ, почти всегда сюжетных, он рисовал яркую картину жизни социальных низов России.
Тяжелые условия жизни и напряженный труд подорвали здоровье поэта. Он умер в 1861 году в возрасте 36 лет от чахотки.
Ул. Никитина в Новосибирске начинается от ул. Зыряновской недалеко от станции «Новосибирск –Южный». От ул. Добролюбова ул.Зыряновская как бы раздваивается. Правый рукав идет под горку к вокзалу станции «Новосибирск –Южный», где ул. Зыряновская оказывается в тупике. На ул. Никитина от вокзала можно попасть, поднявшись по лестнице. Левый рукав проходит мимо ДК им. А.С. Попова и стыкуется с ул. Никитина. По ул. Зыряновская ул. Никитина имеет выход на ул. Добролюбова и далее к ул. Восход (бывшей Сузунской).
В ходе моего исследования о истории происхождении названия улицы Никитина, я столкнулся с множеством заблуждений, как молодых людей, так и лиц преклонного возраста по поводу, чье имя носит моя улица.
Самое частое ошибочное мнение , что она названа в честь знаменитого русского путешественника Афанасия Никитина.
Еще одно заблуждение, которое я услышал, что улица названа в честь создателя Останкинской телебашни Николая Никитина (1907-1973) А в подборке статей газеты «Честное слово» № 5 (315) я прочел предложение доктора наук Рюрика Повилейко, в котором он как раз и говорит о Николае Васильевиче Никитине- выдающемся ученом в области строительных конструкций. Николай Васильевич практически открыл для России сборный железобетон. Разработки и исследования Н. В. Никитина легли в основу проектирования зданий Московского государственного университета, знаменитого памятника «Родина-мать» на Мамаевом кургане в Волгограде и наконец знаменитой Останкинской телевышки, которую уместнее было бы называть (по аналогии с Эйфелевой башней в Париже) «Никитинской».
В связи с этим у Рюрика Повилейко и возникло предложение переименовать в его честь одну из улиц. Доктор наук говорит о том, что переименовать надо собственно улицу Никитина, а поскольку она уже существует, то никаких материальных затрат не потребуется. Его мнение: «Бог знает в какие времена, и Бог знает по какой причине улицей Никитина был назван один из переулков в Октябрьском районе. С тех пор этот переулок превратился в оживленную магистраль. Названа же эта улица в честь не имеющего никакого отношения к Сибири русского поэта Ивана Саввича Никитина (1824 - 1861 гг.). То есть умер поэт задолго до основания Новосибирска-Новониколаевска. Не будем давать оценку творчества этого поэта. В данном случае куда важнее то, что он не имел никакого отношения к Сибири. И, наоборот, Н. В. Никитин корнями из Новосибирска, в развитие которого он внес заметный вклад. Согласитесь, это веский довод в пользу переименования улицы Никитина в улицу Никитина.»
Не могу согласиться с мнением уважаемого доктора наук. Свое название улица получила в далекие годы строительства города тогда еще Новониколаевска , людьми, которые почитали Никитина и не в нашей компетенции ставить их мнение о творчестве поэта под сомнение. Тем более территориально улицы, носящие имена великих русских классиков, в Октябрьском районе находятся в непосредственной близости друг от друга, как бы создавая некий островок почитания и уважения к людям, так много сделавших для русской литературы. Это видно на карте Новониколаевска 1906 и 1915 годов.(см. Приложение 2.) На этой карте видно, что наша улица уже носит свое нынешнее имя - Никитина. И я думаю не случайно, что на жилмассиве, носящим опять же имя Ивана Саввича Никитина, на улице Тургенева стоят две школы, моя родная №75 и №2.
А великого инженера Николая Никиктина в городе тоже не забыли. Его имя носит площадь перед театром «Глобус».
Ну и самое невероятное мнение по поводу названия улицы я прочел в интернете на одном форуме, посвященном истории г. Новониколаевска-Новосибирска: «Наименование улица получила в связи с тем, что на пересечении с ул. Автогенной геологоразведочная экспедиция построила жилые дома. В то время директором комплексной тематической экспедиции был Никитин».
На такую любопытную заметку из "Народной Летописи" за январь 1909 г. я обратил внимание, посетив Музей Октябрьского района.
Здесь ясно говорится, что город сделал своеобразный подарок самому себе, назвав улицы Закаменского (ныне Октябрьского) района именами девяти писателей и одного художника. Есть среди них и имя Никитина.
Таким образом, несмотря на бесконечную череду переименований, приятно признать, что имена великих русских классиков не исчезли с карты нашего города. Льва Толстого, Чехова, Тургенева, Белинского, Никитина и другие старейшие улицы уже многие годы смотрят с табличек домов на обновленный, развивающийся город. Они — одни из немногих, сохранивших имя. Я надеюсь, что улицы Новосибирска, носящие имена известных классиков русской литературы, будут жить и развиваться вместе с городом еще не одну сотню лет. Я горжусь тем, что живу на улице, носящей имя поэта Ивана Саввича Никитина!
Дрогунов Егор, 7 класс, МБОУ СОШ №75



